Objektart
Adresse
Objektdaten
Informationen
Ausstattung
Details
Dieses außergewöhnliche Haus in Köln bietet Ihnen die seltene Möglichkeit, selbst großzügig zu wohnen - und gleichzeitig einen Teil der Finanzierung durch Mieteinnahmen abzudecken.
Es gibt Mehrfamilienhäuser, die man kauft.
Und es gibt Immobilien, bei denen man sofort erkennt: Hier
steckt mehr drin.
Dieses außergewöhnlich gepflegte Vierfamilienhaus in Köln-
Höhenhaus gehört genau dazu.
Mit mehreren sofort verfügbaren Einheiten, einer großzügigen
Eigentümerwohnung mit Garten und einer soliden, nachhaltig
vermietbaren Struktur bietet dieses Objekt eine Kombination, die
am Markt nur selten zu finden ist.
Für Eigennutzer, Investoren oder beide gleichzeitig.
Wohnen + Rendite - die perfekte Kombination
Stellen Sie sich vor:
Sie wohnen selbst in einer großzügigen Gartenwohnung - und
lassen einen Teil der Finanzierung durch Mieteinnahmen tragen.
Oder:
Sie nutzen den aktuellen Leerstand, um das Objekt strategisch
neu auszurichten und die Erträge gezielt zu steigern.
Genau diese Flexibilität macht diese Immobilie so besonders.
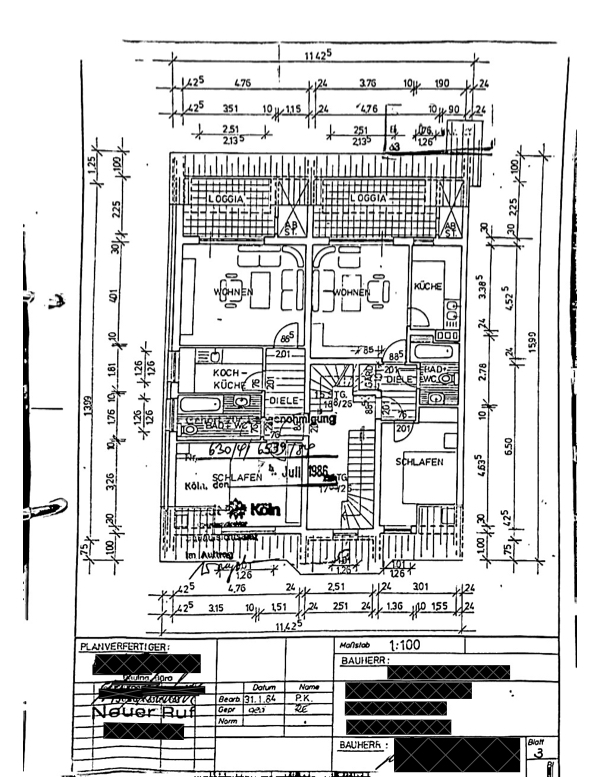
Erdgeschoss - ein Zuhause wie ein Einfamilienhaus
Die ca. 125 m² große Erdgeschosswohnung ist das Herzstück:
direkter Zugang zum liebevoll angelegten Garten
großzügige Terrasse mit Blick ins Grüne
offener Kamin für eine besondere Wohnatmosphäre
Elternbereich mit eigenem Masterbad
zusätzliches Duschbad
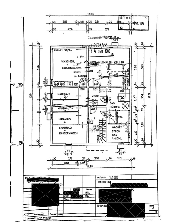
wohnlich ausgebauter Bereich im Souterrain (ca. 30 m²)
Perfekt für Eigennutzer - oder als hochwertige, renditestarke
Vermietung.
Solide Struktur mit gefragten Wohnungsgrößen
Im 1. Obergeschoss:
zwei gut vermietbare 2-Zimmer-Wohnungen
funktionale Grundrisse
Balkone mit neuem WPC-Belag
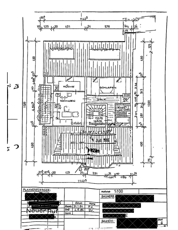
Im Dachgeschoss:
helle Wohnung mit flexibler Aufteilung (2-3 Zimmer möglich)
zusätzlicher Spitzboden mit Ausbaupotenzial
Ein idealer Mix aus Stabilität und Entwicklung.
Der entscheidende Vorteil: Leerstand = Chance
Die aktuelle Situation ist Ihr größter Vorteil:
Erdgeschosswohnung: leer
eine Einheit im 1. OG: leer
Dachgeschoss: perspektivisch verfügbar
Sie entscheiden selbst:
Eigennutzung
Neuvermietung zum aktuellen Marktniveau
strategische Optimierung
Solche Ausgangssituationen sind in Köln extrem selten.
Außenbereich mit echtem Mehrwert
großer, idyllischer Garten mit klarer Struktur
separate Spiel- oder Rückzugsbereiche
Carport im Garten
drei Stellplätze direkt vor dem Haus
Ein klarer Wettbewerbsvorteil bei Vermietung und Verkauf.
Die Fakten auf einen Blick
ca. 273,57 m² Wohnfläche
ca. 46 m² zusätzliche wohnlich nutzbare Fläche
ca. 673 m² Grundstück
4 Wohneinheiten
Baujahr 1984 (massive Bauweise)
sehr gepflegter Gesamtzustand
Stellplätze + Carport
Lage - Köln-Höhenhaus
Ruhig, grün und dennoch bestens angebunden:
familienfreundliche Umgebung
gute Infrastruktur
schnelle Erreichbarkeit der Kölner Innenstadt
stabile und nachhaltige Mietnachfrage
Ein Standort, der dauerhaft funktioniert.
Warum Sie hier handeln sollten
Diese Immobilie bietet etwas, das es am Markt kaum gibt:
mehrere sofort verfügbare Einheiten
starke Eigennutzer-Option
Entwicklungsspielraum für Investoren
gepflegte Substanz ohne Sanierungsstau
Und genau diese Kombination sorgt erfahrungsgemäß für sehr
hohe Nachfrage.
Jetzt Besichtigung sichern
Immobilien mit dieser Flexibilität und diesem Zustand sind in Köln
selten - und meist schnell vergeben.
Vereinbaren Sie jetzt Ihren persönlichen
Köln-Höhenhaus überzeugt durch eine ruhige, familienfreundliche Wohnlage mit guter Infrastruktur. Einkaufsmöglichkeiten, Schulen, Kindergärten sowie perfekten Anbindungen an den öffentlichen Nahverkehr und das nahegelegenen Autobahnnetz.
Die Kombination aus urbaner Nähe in dörflichem und grünem Umfeld macht diesen Standort besonders attraktiv.
Wir bitten Sie uns bei Interesse Ihre vollständigen Kontaktdaten zu übermitteln.
Die angegebenen Informationen sowie jegliche Objektunterlagen sind ohne Gewähr und basieren ausschließlich auf Eigentümerangaben. Für die Richtigkeit, Aktualität und Vollständigkeit übernehmen wir keine Gewähr. Zwischenvermarktung bleibt vorbehalten. Wir behalten uns vor, bei Weitergabe unseres Exposés an Dritte Provisions- bzw. Schadenersatzansprüche geltend zu machen.
Energieausweis (Bedarfsausweis)
206,50 kWh / (m²*a) Endenergiebedarf
206,50 kWh / (m²*a) Endenergiebedarf
206,50 kWh / (m²*a) Endenergiebedarf
Weitere Informationen
| Wesentlicher Energieträger | GAS |
| Energieausweis Ausstelldatum | 2026-01-15 |
| Energieausweis gültig bis | 01-2036 |
| Energieausweis Jahrgang | ab dem 1.5.2014 |
| Energieverbrauch für Warmwasser | enthalten |
| Energieausweis Wärmewert | 206,5 kWh / (m²*a) |
| Energieausweis Werteklasse | G |
| Energieausweis Baujahr | 1984 |
| Heizung | Zentralheizung |
| Befeuerung | Gas |
Ich bin damit einverstanden, dass mir Karten von Google angezeigt werden. Es gelten die Datenschutzbedingungen von Google (https://policies.google.com/privacy).
Ich bin einverstanden